predestination death to self the daily cross the daily resurrection the one true baptism spiritual Passover no dispensationalism
predestination death to self the daily cross the daily resurrection the one true baptism spiritual Passover no dispensationalism

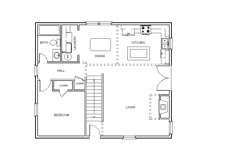
Plans range from 800 to 4999 sq ft. They are professionally drawn on auto cad by an award winning builder and contain every detail needed to guide your new home construction. Every page is designed for the contractor in that particular field.

As with all home plans that are to be used outside of the state they are drawn in, these plans are to be considered as renderings, because they are not licensed for your local application. It might be necessary to consult a local architect and have him go through your new plans and adapt them to your required local codes. It is for this reason that we offer the cad files. We also chose to reduce the cost of all of our digital plans. In most cases, our plans are superior to other sites due to the time taken to draw them so the only alterations needed are pier specs and additional things like nail and brace patterns and possibly LVL dimension spans or truss specs. But these things will halt your project in a second and we understand that.
Some states do not allow out of state plans to receive a building permit, so make sure and check your codes office.
You will be thoroughly happy with your new home or cabin plan. We built houses for twenty years and were always frustrated with plans that we did not draw. So we made sure that every line on every page is easy to read and every note is easy to understand.
You’ll get Elevation//Foundation//Floor//roof//Electrical//Details//Ceiling**// Plumbing//HVAC Mechanical





Eleifend mi in nulla posuere. Morbi tristique senectus et netus. Est pellentesque elit ullamcorper dignissim cras. Scelerisque mauris pellentesque pulvinar pellentesque. Nisl purus in mollis nunc sed. Quam vulputate dignissim suspendisse in. Tellus in metus vulputate eu scelerisque felis imperdiet proin fermentum.
Pellentesque elit eget gravida cum sociis natoque penatibus et magnis. Scelerisque viverra mauris in aliquam sem. Cras semper auctor neque vitae tempus. At augue eget arcu dictum varius duis at consectetur. Euismod lacinia at quis risus sed vulputate odio. Habitant morbi tristique senectus et netus et malesuada fames. Pharetra sit amet aliquam id. Imperdiet dui accumsan sit amet nulla facilisi morbi tempus. Facilisi nullam vehicula ipsum a arcu cursus vitae. Arcu non odio euismod lacinia at quis. Et malesuada fames ac turpis egestas. Volutpat lacus laoreet non curabitur gravida arcu ac tortor.
Orci ac auctor augue mauris augue neque. Senectus et netus et malesuada fames ac. Risus pretium quam vulputate dignissim suspendisse in est ante. Risus pretium quam vulputate dignissim suspendisse. Euismod nisi porta lorem mollis aliquam ut porttitor. At varius vel pharetra vel turpis nunc eget. Aliquam ultrices sagittis orci a.
Amet consectetur adipiscing elit duis tristique sollicitudin nibh sit amet. Feugiat nisl pretium fusce id velit ut tortor pretium. Et sollicitudin ac orci phasellus egestas tellus. Felis imperdiet proin fermentum leo vel orci. Fermentum iaculis eu non diam.
Nam libero justo laoreet sit amet. Quis ipsum suspendisse ultrices gravida dictum fusce ut placerat. Nec ullamcorper sit amet risus nullam eget felis. Nunc eget lorem dolor sed viverra ipsum nunc aliquet bibendum.